Timber by
EMSIEN 3 Ltd
BG
Anna Maria Limongelli
Architetto
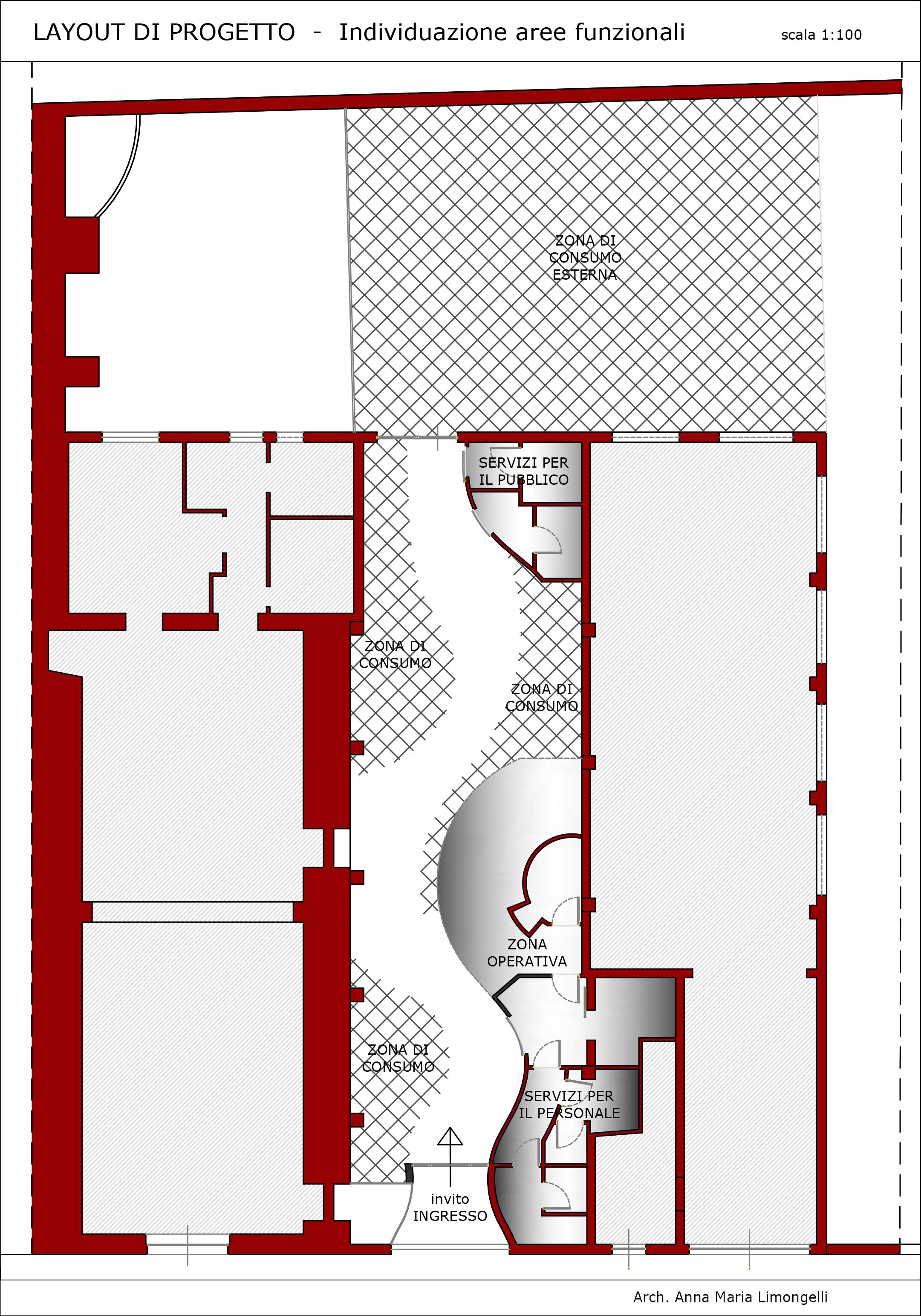
Disegni -Lounge Bar
Tweet
Anna Maria Limongelli
Architetto
Open Menu
Menu
amlimongelli@gmail.com | 0832393274 | lecce 73100 viale g. leopardi 156 | p.iva 03794160758
Home
Works
Projects
Philosophy
La casa
Il vuoto
L'architetto
About me
Contact
Log in
Remember Me
Forgot your password?
Forgot your username?
create an account